Perspective concours ©Jean-Jacques Begel

Cette visite de chantier est organisée par le CAUE en collaboration avec Envirobat Grand Est-ARCAD LQE. Elle s'adresse principalement aux professionnels de la maîtrise d'œuvre, mais également aux élus et agents de collectivité. Elle vous permettra de découvrir un chantier en cours, en présence des acteurs du projet.

Programme et contraintes

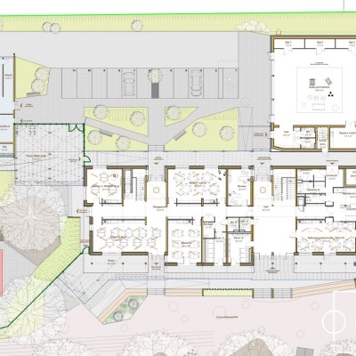
La reconstruction de l’école élémentaire et des espaces extérieurs s’effectue sur un site en activité, dans le cadre du regroupement avec la maternelle adjacente. La cour sera végétalisée. Situé en zone risque inondation, le site requiert un traitement spécifique des eaux à la parcelle.

Concept architectural

Pour éviter le recours à des bungalows provisoires, l’ancienne école restera opérationnelle durant les travaux. Elle sera déconstruite une fois la nouvelle école en service, libérant ainsi un espace destiné à un parking et une salle polyvalente accessible aux riverains.

Conformément aux contraintes du PPRI (Plan de Prévention des Risques Inondation), l’école est construite sur un socle surélevé par rapport à la cour. Le rez-de-chaussée est consacré aux activités périscolaires, tandis que l’école se déploie à l’étage.

Les galeries de liaison avec la maternelle forment un préau, soulignant l’entrée côté parking.

Bien que la structure principale soit en béton, afin de répondre au risque d’inondation, le bois est largement employé, notamment pour les coursives et la charpente en bois massif, offrant une ambiance lumineuse et chaleureuse.

La cour fait l'objet d'un projet paysager qui va renforcer la végétalisation, tout en préservant les arbres existants.

Une démarche de concertation avec les utilisateurs a eu lieu après le concours afin d'optimiser les surfaces, ce qui permet de réduire le coût et l'impact carbone du nouveau bâtiment.

Aspects techniques

Le bâtiment respecte la réglementation RE 2020, il utilise le chauffage urbain, il est équipé d’une ventilation double flux et emploie des isolants biosourcés et répond par ailleurs aux exigences du pacte bois. Le chantier présente des contraintes importantes liées au site occupé et à un accès en impasse. Le traitement des eaux est réalisé à la parcelle via une chaussée drainante. Le projet intègre le réemploi des matériaux issus de la déconstruction et suit une démarche BIM de niveau 1.

 

Maîtrise d’œuvre : Atelier MPA (Maddalon Piquemil Architecture) mandataire, BMT & Associés, Cale paysage, Etico, Lorr’Enr, B27
Maîtrise d’ouvrage : Commune de Saint-Max
Entreprise générale : GTM
Surfaces : 1 665 m² + 3 460 m² de cour

 

Inscription à la visite ICI

Photographies